Системы центрального пылеудаления — стационарные комплексы для эффективного и гигиеничного поддержания чистоты в зданиях. В основе лежит скрытая сеть из воздуховодов, встроенных инлетов («пневморозеток») и мощного вакуумного агрегата, обеспечивающего их работу.
Компания PUZER уже более 20 лет проектирует, поставляет и монтирует такие системы. В настоящее время PUZER использует оборудование от итальянских и шведских поставщиков.
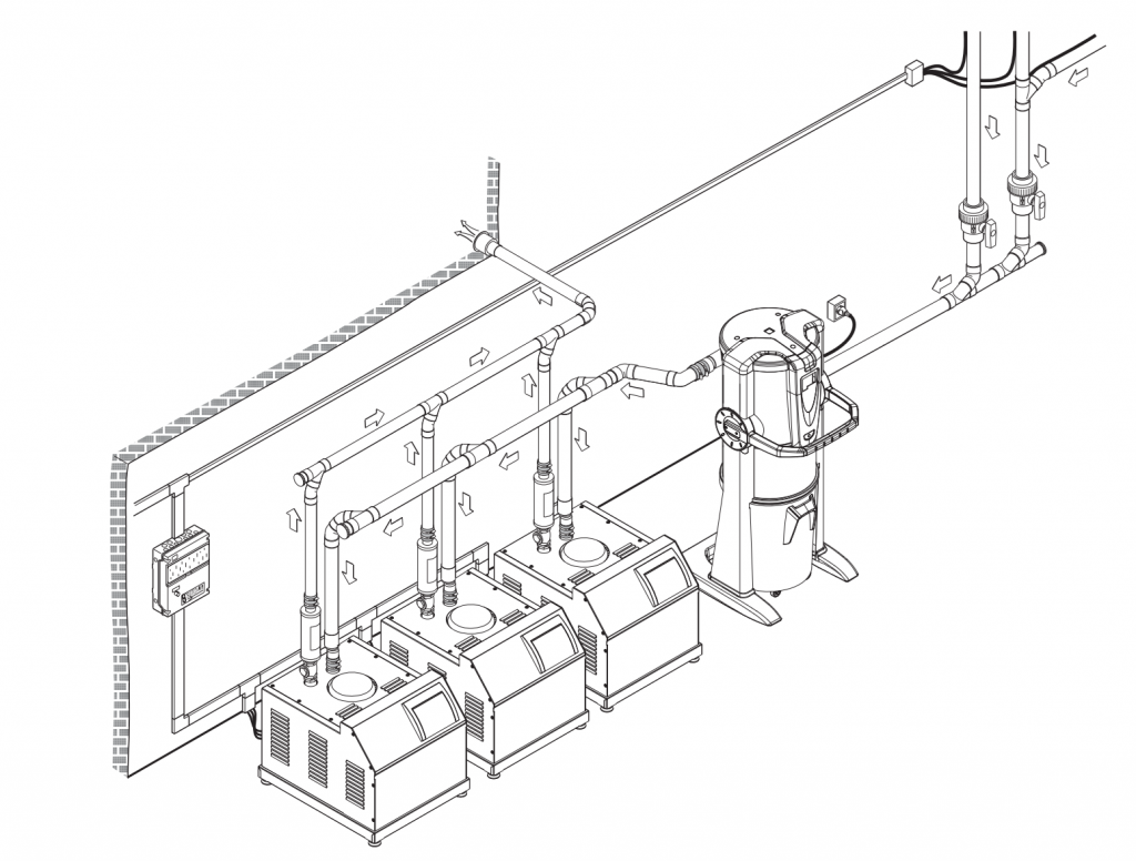
Основной элемент системы — вакуумный агрегат — включает двигатель для создания вакуума, а также сепаратор для отделения пыли от воздушного потока и ее сбора в герметичный контейнер или мешок. Двигатель и сепаратор могут быть как в едином корпусе, так и в виде отдельных устройств. Оборудование центральной станции подбирается в соответствии с параметрами объекта. Доступны различные варианты агрегатов, а также их комбинация для уборки помещений любых размеров – от небольшого офиса до целого здания гостиницы или театра.
Сеть вакуумных труб служит для транспортировки пыли и мусора от пневморозеток к вакуумному агрегату. Доступна открытая и скрытая прокладка труб диаметром 50, 63, 80 и 100 мм, которые монтируются в стены, пол и потолок. В зависимости от среды применения используются антистатичный пластик PVC-U (для обычных сред) и нержавеющая сталь AISI 304 (для агрессивных сред).
Инлеты представляют собой точки подключения шланга. Устанавливаются в стену или пол, доступны в вариантах открытого и скрытого монтажа во множестве форм и дизайнов. Для настенных инлетов предусмотрены исполнения с подключаемым внешним шлангом или со шлангом, убирающимся в стену.
К инлетам подключаются различные инструменты для уборки: шланги, рукоятки, щетки и насадки. Длина шлангов может достигать 12 м (7, 9, 12 м). Рукоятки доступны как с беспроводной системой включения, так и без нее.
Широкий ассортимент аксессуаров: циклонные сепараторы для сбора жидкостей или золы, системы автоматической смены контейнеров, различные насадки и аксессуары для специализированной уборки.
Компания PUZER предлагает услугу нанесения (печати) любой текстуры на лючки настенных и напольных инлетов при желании максимально замаскировать их в интерьере.
Уборка начинается с подключения шланга с щеткой к инлетам. Система включается автоматически при подсоединении шланга или нажатием кнопки на рабочей насадке в зависимости от конфигурации. Всасываемые пыль и мусор через вакуумные трубопроводы попадают в основной элемент системы — вакуумный агрегат, который устанавливается в техническом помещении и обеспечивает бесшумную работу в зоне уборки. Очищенный через систему фильтров воздух выводится за пределы здания, что предотвращает повторное загрязнение воздуха внутри помещения.
PUZER разрабатывает и поставляет автоматизированные решения для сбора и удаления отходов, а также занимается поставками систем центрального пылеудаления.
Уже более 20 лет компания проектирует и внедряет системы управления отходами. С 2018 года, став частью холдинга Smart Group, PUZER значительно расширила свои возможности — перешла к собственной разработке и производству оборудования, опираясь на многолетний опыт в проектировании и эксплуатации импортных систем.
Собственный R&D-отдел обеспечивает непрерывное развитие продуктов и технологическую независимость. А многолетний опыт проектирования позволяет эффективно сотрудничать с ведущими девелоперами, архитекторами и генподрядчиками, реализующими современные городские пространства.
Отправьте форму, и мы свяжемся с вами в ближайшее время.
Данный сайт использует файлы cookie, которые помогают нам создать максимально удобные для посетителя условия пользования сайтом. Используя этот сайт, вы соглашаетесь с размещением cookie‑файлов.